アルミフロントのパイオニア。
店舗用サッシ、カーテンウォールの施工・販売の昭和フロント株式会社。

スリムフロント外美・内美

TOP > 製品紹介 > 製品一覧から探す > スリムフロント外美・内美

 

スリムフロント外美(ソトミ) 内美(ナカミ)

スリムフロント外美(ソトミ) 内美(ナカミ)

スリムフロント外美(ソトミ) 内美(ナカミ)はフレーム見付15㎜のフロントサッシです。
屋外に面するフロントサッシの「外美(ソトミ)」と屋内の間仕切用途の「内美(ナカミ)」は昭和フロントが提案する新たなフレーム製品です。

建物に存在する線と面を効果的に織り交ぜたフロントサッシでお客様のニーズにお応えいたします。 

共通仕様

内部用スリムフロント

カラーバリエーション

  • F:シルバー

    F:シルバー

  • B:ブロンズ

    B:ブロンズ 

  • W:ピュアホワイト

    W:ピュアホワイト

  • K:ブラック

    K:ブラック 

  • T:ステンカラー

    T:ステンカラー 

  • D:ダークブロンズ

    D:ダークブロンズ

  • ブロンズ、ピュアホワイト、ダークブロンズは受注色となります

スリムフロント外美(ソトミ)

外美

製品特長

フレーム見付15㎜でも外部使用に耐え得る性能を確保

耐風圧性能はS-2等級、気密性能と水密性能については最高基準のA-4等級、W-5等級をそれぞれ確保しています。

複層ガラス対応

金需要が高まっているガラス溝幅34㎜の複層ガラスタイプもラインアップしています。

製作範囲

スリムフロント外美

基本断面図

内部用スリムフロント

スリムフロント内美(ナカミ)

内部専用フロント

製品特長

複合商業施設や駅ナカ施設内の店舗やエントランスに最適

複合商業施設や駅ナカ施設内の店舗やエントランス、オフィスなどのスクリーンや間仕切りに
最適な内部専用フロント

自由な意匠設計

昭和フロントのフロント材との組み合わせが可能なため、デザインの自由度が高く設計イメージ通りの意匠を実現できます。

製作範囲

内部用スリムフロント

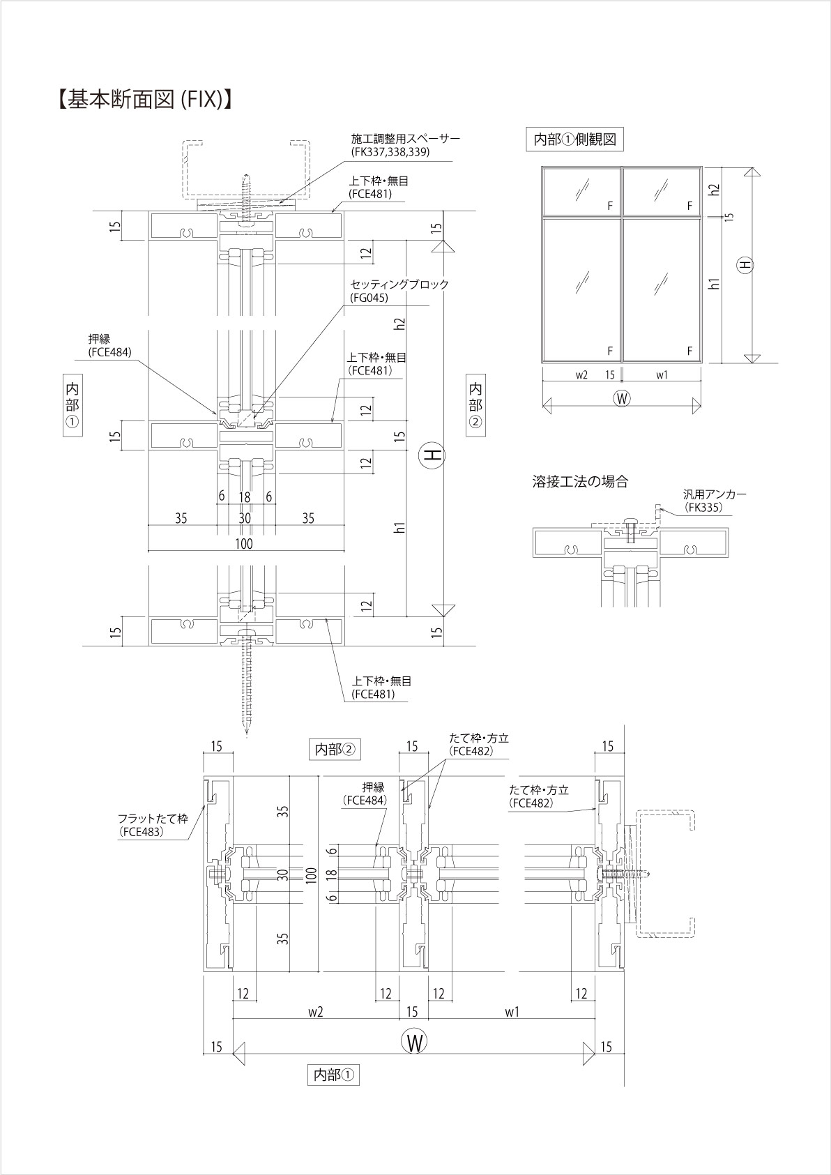
基本断面図(FIX)

内部用スリムフロント

 

 

詳細については、Webカタログをご参照ください。
(下記画像をクリックするとカタログをご覧いただけます)

内部用フロント総合カタログ